Portfolio
JESSICA LAMB DESIGN
Portfolio
drafting
CONCEPTS
RESIDENTIAL HOME
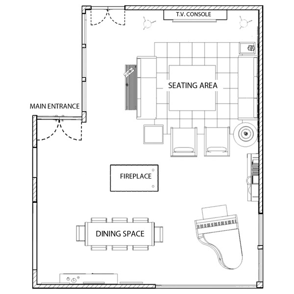
GREAT ROOM
MASTER BED AND BATH
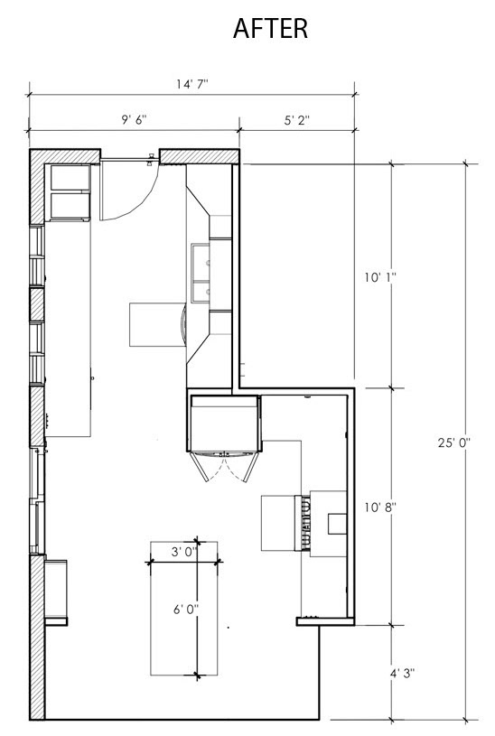
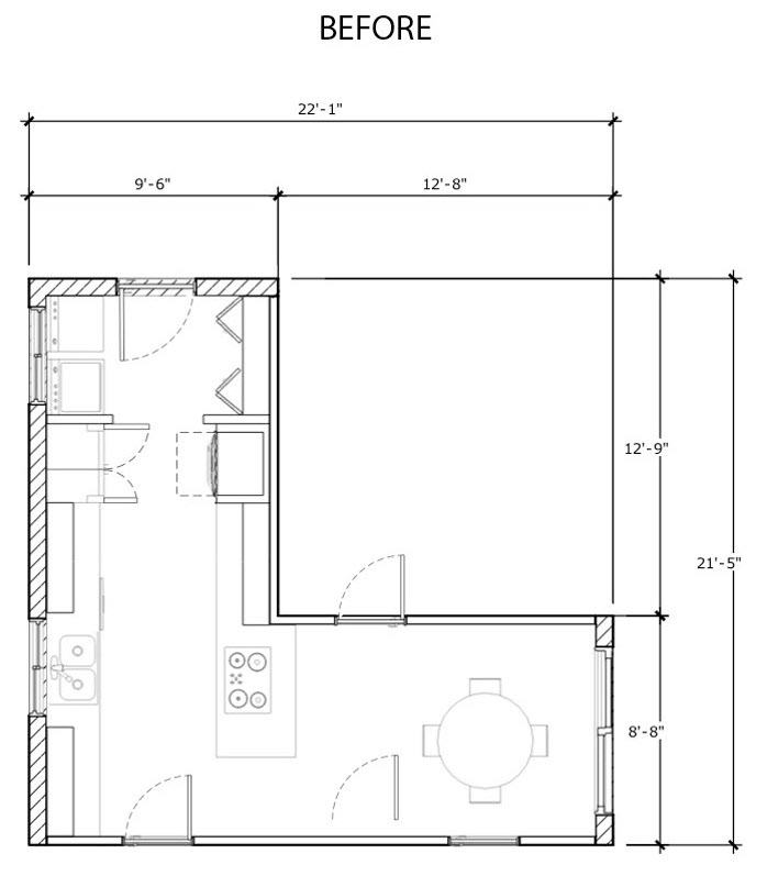
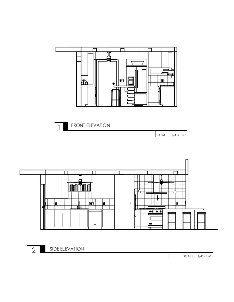
KITCHEN
↑
Back to Top